Description
40 lakh
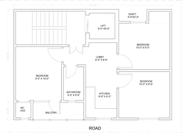
The building is going to be constructed at gali no. 6 in zakir nagar. The flat consists a lobby with 3 Bedrooms and 2 Bathrooms. One room has an open balcony, another has a western seat bathroom attached,and a kitchen is nearby. It is on 1st floor with lift facility.
- 3 BHK
- 2 Washrooms
- 80 Gaz
- Going to start
Amenities
- Lift Facility
- Balcony
Public Facilities
- Jama Masjid in Zakir Nagar
- Batla House Qabristan
- Escort Hospital
- Cambridge School New Friends Colony
- Jamia Millia Islamia University
- Batla House Market
- Ashoka Park
- Surya Hotel
- Jamia Metro Station



